Building the Future
Our Vision: Take a closer look at what our expansion will enable.
Building the future of film, television and games
Welcome to the new NFTS building!
The expansion project is an investment in creative education and by addressing capacity constraints and enhancing accessibility, we will continue to encourage innovation, nurture talent, and support the screen sectors. Our new, fully accessible building will facilitate and enable cross-disciplinary collaboration, driving innovation and creativity.
Content Tabs
Our entrance lobby will be a flexible exhibition and gallery space and a visual representation of our industry. This floor will enable us to provide on-the-job training for apprentices, with a new Apprenticeship & Training Centre. We will introduce cutting-edge courses in Games, AI, Virtual Production and Advanced Animation. Brand new collaboration spaces will be equipped with the very latest technology to fuel the creative process.
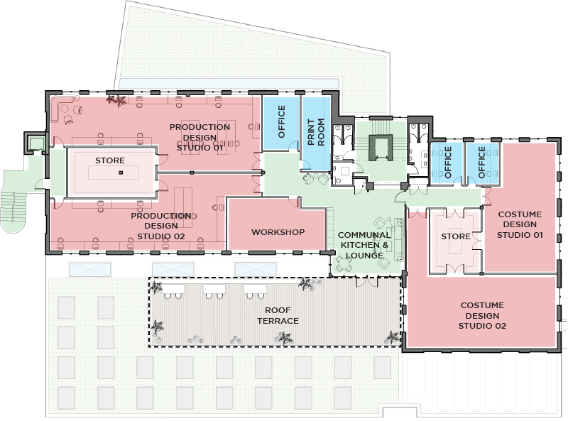
Our brand new Costume Design course will take place on the first floor, alongside the existing Production Design course. Students and teachers will also have space to unwind, connect and look after body and mind. The NFTS experience includes a focus on wellness and wellbeing and we will be providing an on-site gym and a beautiful, fully-sustainable roof terrace. This floor will also benefit from communal kitchen and lounge areas.
The second floor will house private and fully-accessible student living studios, helping address local accommodation shortages and ensuring students can fully embrace the NFTS experience. This floor will benefit from communal lounge, kitchen and laundry facilities.
For more information on the accommodation provided, please visit our Accessible Accommodation page.